Manhole Access for Drain Survey - James France Way & G Block Frontage - 17 September 2024 - 8.00 a.m. - 5.00 p.m.

Posted: 13 September 2024

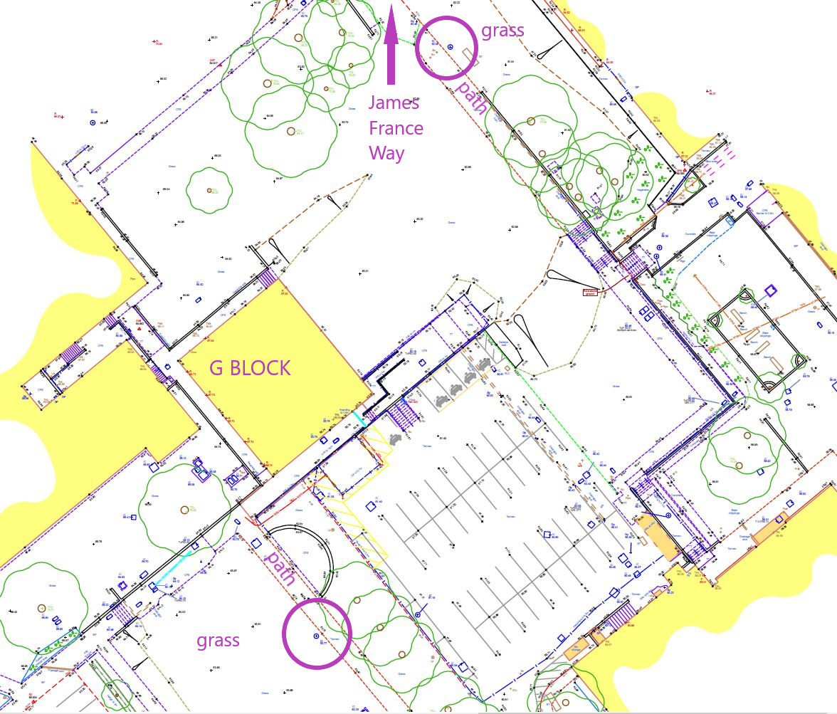
Image of James France area

Description of the works

The work needs to be done to survey the state of the existing drains.

The Contractor, Wasteline, and their team, will be accompanied by Rod Harrison from the University Fire Compliance Team.  The entrance to the manholes will be barriered off, and there may be some temporary pedestrian access restrictions in the immediate surroundings, particularly on a small section of James France Way (as per the attached site plan).  There will be appropriate signage advising of any way finding changes and personnel will be available on site for enquiries.

17 September 2024 - 8.00 a.m. - 5.00 p.m.

How Can I Get More Information and Help?

The Estates and Facilities Management team member looking after the task is detailed below and can be contacted about any difficulties experienced as a result of these works.

Rod Harris - Fire Compliance Officer / Ria Lohse - University Architect

Mobile:  07729080155 / 07928511940

Email:  r.m.harrison@lboro.ac.uk / e.lohse@lboro.ac.uk